Аренда > Коммерческая недвижимость > Офисы эконом класса у нового автовокзала, пр. Мира 78. Аренда 300-350 руб м2.
Фотографии
Адрес: г. Чебоксары,
| Описание строения | |||
| Название объекта | Офисы от 10 до 200 м2 | ||
|---|---|---|---|
| Тип | Кирпичный | ||
| Этажность | 1, 2 | ||
| Сервис | Сигнализация/Охрана, Парковка/Стоянка | ||
| Коммуникации | Вода, Электричество, Канализация, Телефон | ||
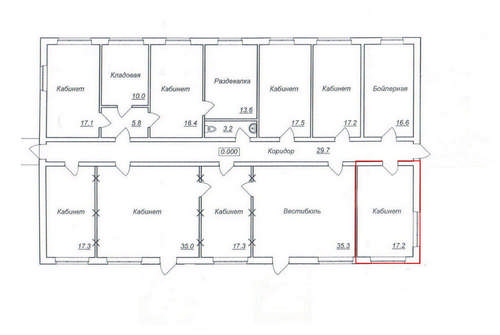
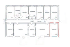
| Примечание | Агентство на Ярославской заключило договор с собственником на сдачу в аренду нескольких кабинетов, расположенных в отдельно стоящем здании. Прилегает к территории нового автовокзала: Чебоксары, пр. Мира, 78. Место очень людное. Есть возможность круглосуточной работы. Большая охраняемая парковка у входа, асфальт. Офисы см план: 1-2 этажи: смежные или отдельные, замок на вх двери. От 10 кв.м.; Все теплые, с окнами. Отделка – эконом класса. Санузлы – общие на этаже. На 1 этаже есть офисы с прямым входом на улицу. Возможность размещения вывески или рекламы на фасаде здания. | ||
| Описание помещения | |||
| Назначение помещения | Офис, Образовательное учреждение, Финансовое учреждение , | ||
| Тип отопления | Индивидуальное газовое | ||
| Состояние | Хорошее | ||
| Примечание | Офисы от 17 до 40 кв.м. можно взять несколько этажей или этаж. Коридорно-кабинетная система. Помещения теплые. На окнах-стеклопакет. Отделка. Санузел - на этаж. | ||
| Стоимость и условия сделки | |||
| Стоимость аренды |
| ||
| Коммунальные платежи | Не включены, без НДС | ||
| Условия сделки | Первоначальная стоимость аренды от собственника: 300-350 руб/м2, в стоимость включены: вода, канализация, электричество, подох налог, мытье полов и мест общего пользования, уборка прилегающей территории. Отдельно оплачивается отопление в зимний период. Без НДС. Поддержим первые месяцы ведения бизнеса. Оплата в день подписания договора аренды с оплатой за два месяца- первого и последнего, затем помесячно. Окончательные условия – в переговорном процессе. Фото и информация в объявлении — реальные! | ||
| Контактная информация | |||
| Компания | Агентство на Ярославской | ||
| Контактное лицо | Ксения Евгеньевна Попова | ||
| Телефон | +7 (8352) 62-06-05; +7 (987) 760-95-81 | ||
| house.group.cheboksary@gmail.com | |||
| Другая контактная информация | ВИДЕО: http://www.youtube.com/watch?v=Zv66qH-YWzs | ||
Не нашли подходящего предложения?
Отправьте нам заявку при помощи формы "Запрос на поиск".
Поскольку внутренняя база предложений пополняется ежедневно, мы без труда сможем найти интересующий вас нужный вариант недвижимости.
Ознакомьтесь с перечнем услуг, оказываемых нашим агентством.


Оставить
Каталог















© 2008-2026. "
Курьезы из жизни