Продажа > Коммерческая недвижимость > Помещение для бизнеса, 201 м2, сзр, 1 линия, ранее кафе, магазин.
Фотографии
Адрес: г. Чебоксары,
| Описание строения | |
| Тип | Кирпичный |
|---|---|
| Этажность | цоколь |
| Сервис | Сигнализация/Охрана, Парковка/Стоянка |
| Коммуникации | Вода, Электричество, Канализация, Интернет |
| Примечание | Агентство на Ярославской заключило договор с собственником на реализацию нежил. помещения: Чебоксары, ул. П.Ермолаева, 1. Кирп дом. Элитный, заселенный мкр Волжский-3. Ост общ транспорта 3 мин. |
| Описание помещения | |
| Назначение помещения | бизнеса |
| Тип отопления | Центральное |
| Состояние | Хорошее |
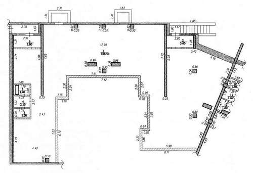
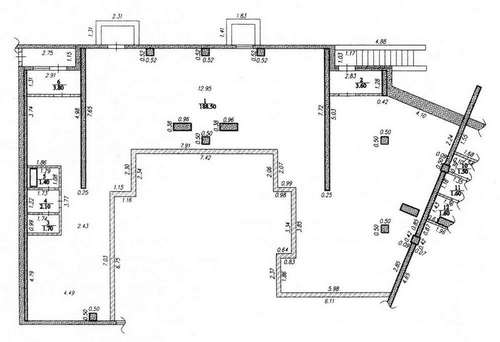
| Примечание | Ранее размещался суши-бар, затем зоомагазин. Соседние помещения все заняты: Пятерочка, ТЦ «Атлантис», бильярдный клуб, салоны красоты, меха, стоматологии, дом обуви, офисный центр, техцентр BOSCH. Удобный въезд и видимость с проезж части. Парковка-у входа. Вывеска с подсветкой. 2 входа в помещ (есть возм сделать 3). Цоколь с окнами. S=201 м2, h=2,75. Навесной потолок. 3 туалета, холл, кабинет. 2 автоном линии электроснаб - 21,4 кВт. ОПсигнализация. Вода. Водоотвод. Счетчики расхода. Теплое, сухое, без признаков сырости/плесени. Минимальные расходы на содержание/налог на имущество. |
| Площадь, м 2 | 201 |
| Стоимость и условия сделки | |
| Стоимость | 47 000 руб. за м2 |
| Условия сделки | Первоначальная стоимость от собственника 47000 руб/м2 или 9450000 руб всего, без НДС. Без комиссии агентства. Окончательные условия – в переговорном процессе. Фото и информация в объявлении — реальные! |
Кредитование | ![]() Условия кредитования в «НБД-Банк» |
| Контактная информация | |
| Компания | Агентство на Ярославской |
| Контактное лицо | Ксения Евгеньевна Попова |
| Телефон | +7 (8352) 62-06-05; +7 (987) 760-95-81 |
| house.group.cheboksary@gmail.com | |
Не нашли подходящего предложения?
Отправьте нам заявку при помощи формы "Запрос на поиск".
Поскольку внутренняя база предложений пополняется ежедневно, мы без труда сможем найти интересующий вас нужный вариант недвижимости.
Ознакомьтесь с перечнем услуг, оказываемых нашим агентством.


Оставить
Каталог




© 2008-2026. "
Курьезы из жизни