Аренда > Коммерческая недвижимость > Рабочий кабинет в Салоне интерьера «Буржуа». СЗР. Для дизайнеров, строителей, отделочников и тд. Аренда от собственника
Фотографии
Адрес: г. Чебоксары, Северозападный,
| Описание строения | |||
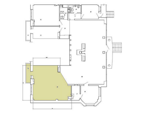
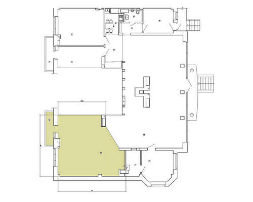
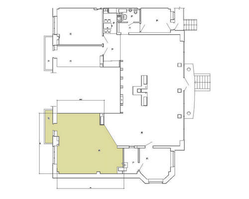
| Название объекта | Отдельный кабинет 24 м2 (соседи — отдел торговли свтом, декор лепниной, обоями). | ||
|---|---|---|---|
| Тип | Кирпичный | ||
| Этажность | 1/9 | ||
| Сервис | Сигнализация/Охрана, Парковка/Стоянка | ||
| Коммуникации | Газ, Вода, Электричество, Канализация, Телефон, Телевидение, Интернет | ||
| Примечание | Есть возможность аренды торг площади 53 м2 по 600 руб/м2. | ||
| Описание помещения | |||
| Назначение помещения | Офис, Салон , салон штор, дизайнер, продажа и установка мебели, техники итд | ||
| Тип отопления | Индивидуальное газовое | ||
| Состояние | авторский проект | ||
| Оборудование | Частично оборудовано | ||
| Примечание | Кабинет предлагается под организацию бизнеса, связанного с дизайном, отделкой, строительством ... Известное бюро открыто с 2008 года. Расположено в элитном микрорайоне на 1 линии. Представляет собой сообщество независимых профессионалов работающих в сфере интерьерного дизайна. 1 этаж. Отдельный вход. Чебоксары, СЗР, ул. Ермолаева, 1. Авто парковка-у входа. Вывески на фасаде. Авторский проект отделки. Совместная бизнес кухня. Душ. Санузел. Кондиционер. ОП сигнализация. Инд отопление. Совместные рекламные акции. С нами хорошо! | ||
| Площадь, м 2 | 24 | ||
| Стоимость и условия сделки | |||
| Стоимость аренды |
| ||
| Коммунальные платежи | Не включены, без НДС | ||
| Залоговая (страховая) сумма | 15000 | ||
| Предоплата | месяц | ||
| Комиссия | нет | ||
| Условия сделки | Первоначальная стоимость аренды 15000 руб/кабинет/месяц, без комм платежей. Работая с нами, Вы присоединяетесь к коллективу профессионалов. Поддержим первые месяцы ведения бизнеса. Окончательные условия – в переговорном процессе. Фото и информация в объявлении — реальные! Правила работы с нами: 1) до того как звонить нам, изучите внимательно данное объявление, посмотрите фотографии, условия сделки и местоположение. 2) при разговоре с нами, пожалуйста: -представьтесь полностью, -укажите точно объект, который вас заинтересовал; 3) показы объекта-при серьезности намерений. | ||
| Контактная информация | |||
| Компания | Агентство на Ярославской | ||
| Контактное лицо | Ксения Евгеньевна Попова | ||
| Телефон | +7 (8) 987-760-95-81 | ||
| house.group.cheboksary@gmail.com | |||
| Другая контактная информация | Михаил 89053404444 | ||
Не нашли подходящего предложения?
Отправьте нам заявку при помощи формы "Запрос на поиск".
Поскольку внутренняя база предложений пополняется ежедневно, мы без труда сможем найти интересующий вас нужный вариант недвижимости.
Ознакомьтесь с перечнем услуг, оказываемых нашим агентством.


Оставить
Каталог















© 2008-2026. "
Курьезы из жизни