Аренда > Коммерческая недвижимость > Торг площадь в Салоне интерьерного дизайна «Буржуа» 53 м2. СЗР. Аренда от собственника для специалистов.
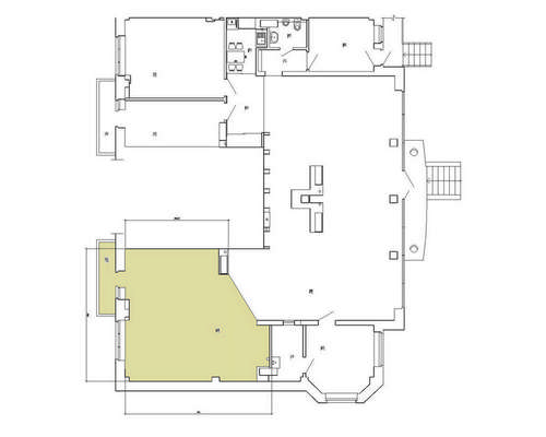
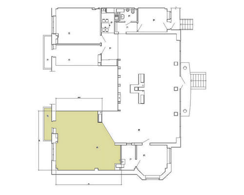
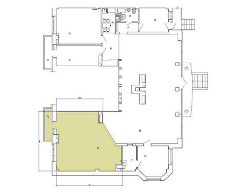
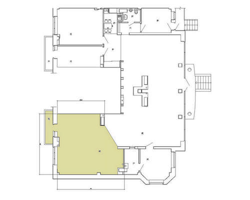
Фотографии
Адрес: г. Чебоксары, Северозападный,
| Описание строения | |||
| Название объекта | Торговая площадь с салоне интерьерного дизайна | ||
|---|---|---|---|
| Тип | Кирпичный | ||
| Этажность | 1 | ||
| Сервис | Парковка/Стоянка | ||
| Коммуникации | Газ, Вода, Электричество, Канализация, Телефон, Телевидение, Интернет | ||
| Примечание | Агентство на Ярославской заключило договор с собственником на сдачу в аренду части нежилого помещения торговую площадь (соседи — отдел торговли декор лепниной, обоями) 53 м2. Имеется отдельный кабинет 24 м2 для аренды дополнительно. Хорошо известное в городе бюро. Поток клиентов. Успешно работаем с 2008 года. Продуманные совместные рекламные компании. | ||
| Описание помещения | |||
| Назначение помещения | Офис, Салон, Магазин идеально под организацию бизнеса, связанного с дизайном, отделкой, строительством и тд. | ||
| Тип отопления | Индивидуальное газовое | ||
| Состояние | Хорошее | ||
| Оборудование | Частично оборудовано | ||
| Примечание | 1 этаж. Отдельный вход. Чебоксары, СЗР, ул. Ермолаева, 1. Авто парковка-у входа. Вывески на фасаде. Отделка Люкс. Декоративное освещение. Стеклопакеты на окнах. Кондиционирование. Вытяжная система. Индивидуальное отопление. ОП сигнализация. Гор телефон. Интернет. Электричество. Вода, Канализация. Установлены счетчики расхода. Интернет. Уборка. Частично мебель. Сплоченный и сильный коллектив. Все условия для работы. | ||
| Площадь, м 2 | 53 | ||
| Стоимость и условия сделки | |||
| Стоимость аренды |
| ||
| Коммунальные платежи | Не включены, без НДС | ||
| Предоплата | месяц/квартал/год/ | ||
| Комиссия | нет | ||
| Условия сделки | Первоначальная стоимость аренды от собственника 600 руб/кв.м., в стоимость не включены: уборка, эл-во, отопление, вода. Без НДС. Арендодатель ИП. Поддержим первые месяцы ведения бизнеса. Окончательные условия – в переговорном процессе. | ||
| Контактная информация | |||
| Компания | Агентство на Ярославской | ||
| Контактное лицо | Ксения Евгеньевна Попова | ||
| Телефон | +7 (8352) 62-06-05 или 89053404444 Михаил | ||
| house.group.cheboksary@gmail.com | |||
Не нашли подходящего предложения?
Отправьте нам заявку при помощи формы "Запрос на поиск".
Поскольку внутренняя база предложений пополняется ежедневно, мы без труда сможем найти интересующий вас нужный вариант недвижимости.
Ознакомьтесь с перечнем услуг, оказываемых нашим агентством.


Оставить
Каталог









© 2008-2026. "
Курьезы из жизни