Аренда > Коммерческая недвижимость > Отдельно стоящее здание, парковка. Центр города. Продажа либо аренда. Под автобизнес, ресторан, маркет и др виды.
Фотографии
Видеоролик
Адрес: г. Чебоксары, Центр города,
| Описание строения | |
| Название объекта | ОТДЕЛЬНОСТОЯЩЕЕ ЗДАНИЕ |
|---|---|
| Год постройки | 2016 |
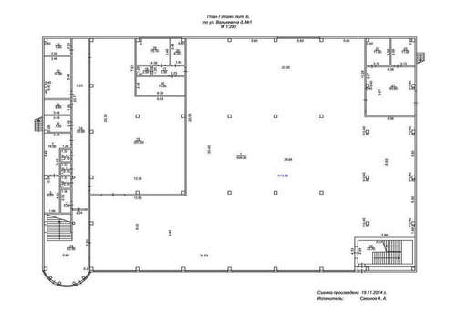
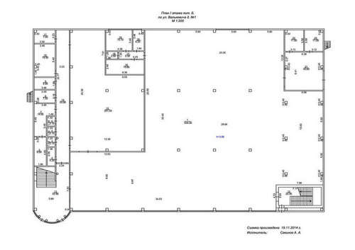
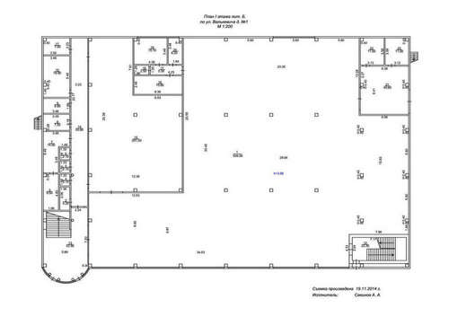
| Площадь участка, м 2 | 4572 |
| Этажность | 1,2/2 |
| Сервис | Сигнализация/Охрана, Парковка/Стоянка |
| Коммуникации | Вода, Электричество, Канализация, Телефон, Телевидение, Интернет |
| Примечание | Агентство на Ярославской заключило договор с собственником на реализацию либо сдачу в аренду отдельно стоящего 2-эт нежилого здания. Сделка возможна на здание целиком (2895 м2) либо поэтажно ( 1500 м2) и земельного участка 4572 м2 (1500 м2 под застройкой), есть возможность использование др прилегающего участка доп по необходимости. Адрес: Чувашия, город Чебоксары, пер. Валькевича, стр 1 корп 1 – центр города. Отличный подьезд. Парковка у здания — асфальт. |
| Описание помещения | |
| Назначение помещения | Салон, Магазин, Кафе/бар, Базa, Склад теплый, Образовательное учреждение, Автобизнес , ШВЕЙНОЕ ПРОИЗВОДСТВО С ОФИСОМ ПРОДАЖ, МЕЛКЛОПТОВАЯ/КРПНООПТОВАЯ БАЗА, РЕСТОРАН, И ТД. |
| Состояние | Требует косметического ремонта |
| Оборудование | Частично оборудовано |
| Примечание | Все коммуникации. Теплое. Легко дооборудуется. Погрузка/разгрузка. лифт-возможен. Основной и доп выходы. Клиентская парковка – у входа. Отопление централизованное, с автоматическим узлом управления |
| Площадь, м 2 | 1500 |
| Стоимость и условия сделки | |
| Коммунальные платежи | Не включены, без НДС |
| Условия сделки | Первоначальная стоимость т собственника: выкуп: 33000-35000 руб/м2; аренда 350-400 руб/м2; НДС нет. Без комиссии агентства. Поддержим первые месяцы ведения бизнеса. Окончательные условия – в переговорном процессе. ВОЗМОЖЕН ВЫКУП: http://www.housegroup21.ru/catalog/?id=1444 |
| Контактная информация | |
| Компания | Агентство на Ярославской |
| Контактное лицо | Катерина |
| Телефон | +7 (8352) 62-06-05; 89877609581 |
| @89877609581@gmail.com | |
| Другая контактная информация | ВИДЕО: https://www.youtube.com/watch?v=pGs9DQ-fjuQ&feature=youtu.be |
Не нашли подходящего предложения?
Отправьте нам заявку при помощи формы "Запрос на поиск".
Поскольку внутренняя база предложений пополняется ежедневно, мы без труда сможем найти интересующий вас нужный вариант недвижимости.
Ознакомьтесь с перечнем услуг, оказываемых нашим агентством.


Оставить
Каталог















© 2008-2026. "
Курьезы из жизни