Аренда > Коммерческая недвижимость > Офисное помещение, 62 кв.м., пр. Ленина, 7 - 1 линия. Аренда от собственника.
Фотографии
Видеоролик
Адрес: г. Чебоксары, Центр города,
| Описание строения | |||
| Название объекта | коммерческое помещение | ||
|---|---|---|---|
| Тип | Кирпичный | ||
| Год постройки | 2011 | ||
| Этажность | 2/3 | ||
| Сервис | Сигнализация/Охрана | ||
| Коммуникации | Электричество, Канализация, Телефон, Интернет | ||
| Примечание | Агентство на Ярославской заключило договор с собственником на поиск арендатора данного помещения. Выгодное расположение на 1 линии пр. Ленина, 7 – самый центр города. Новое кирпичное здание 2011 года. Большой трафик общественного транспорта, пешеходов. Рядом государственные, муниципальные, коммерческие структуры, в т.ч. Стройфак, Арбитражный суд, г-ца «Чувашия» - напротив. Остановка общ транспорта «Гостиница Чувашия» - 1 минута шаговой доступности. Вашу вывеску увидит весь город! Вход – с улицы, пр. Ленина. Этаж 2. Вход – на три офиса. Лестница – общая с широким межлестничным пространством, которое можно оформить и дополнить информационно- рекламным материалом. | ||
| Описание помещения | |||
| Назначение помещения | Офис, Салон, Магазин, Образовательное учреждение, Финансовое учреждение , | ||
| Тип отопления | Автономное на дом | ||
| Состояние | Хорошее | ||
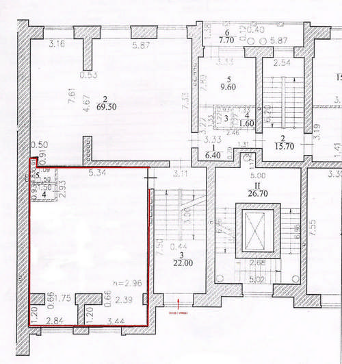
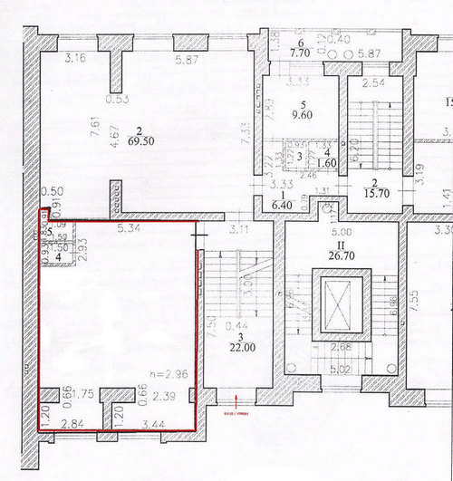
| Примечание | S=63 м2. Есть возможность разделения стеклянными перегородками. Увеличенная высота потолка – 3 м. Санузел и умывальная комната отделаны. Окна – стеклопакеты. Плиточный пол. Счетчики расхода. Отличная вентиляционная система. ОПСигнализация. Здание и прилегающая территория полностью оборудованы, все новое. Развитая инфраструктура, проходная зона, центр города делают это помещение привлекательным для ведения бизнеса: офис компании, представительство, выставочный зал, и т.д. Арендатору предоставляются следующие возможности: 1) установка ОПС, гор телефона, интернета, возможность оборудование лестниц и межлестничных пространств по вкусу, оформление фасадной части помещения – индивидуальной вывеской и рекламными дополнениями; 2) предоставление юр адреса, регистрация договора; 3) установка собственных внутренних перегородок по типу своего бизнеса; | ||
| Площадь, м 2 | 62 | ||
| Стоимость и условия сделки | |||
| Стоимость аренды |
| ||
| Коммунальные платежи | Не включены, без НДС | ||
| Предоплата | МЕСЯЦ | ||
| Комиссия | - | ||
| Условия сделки | Первоначальная ставка аренды 50 000 руб за все помещение, НДС не обл. Коммунальные услуги и расход эл-ва, воды, отопление – отдельно на основании показаний счетчиков. Без комиссии агентства. Поддержим первые месяцы ведения бизнеса. Окончательные условия – в переговорном процессе. Возможны торг при оплате вперед за квартал, год ... Очень выгодное предложение! | ||
| Контактная информация | |||
| Компания | Агентство на Ярославской | ||
| Контактное лицо | Ксения Евгеньевна Попова | ||
| Телефон | 89877609581; | ||
| A89877609581@gmail.com | |||
| Другая контактная информация | собственник - Римма Нестеровна. Предварительная договоренность о просмотре объекта, подробности сделки по тел: 8 917 661 9106 | ||
Не нашли подходящего предложения?
Отправьте нам заявку при помощи формы "Запрос на поиск".
Поскольку внутренняя база предложений пополняется ежедневно, мы без труда сможем найти интересующий вас нужный вариант недвижимости.
Ознакомьтесь с перечнем услуг, оказываемых нашим агентством.


Оставить
Каталог













© 2008-2026. "
Курьезы из жизни