Продажа > Квартиры и комнаты > 3-х комн. квартира. Центр. В отделке. Распашонка. Продажа по цене собственника.
Фотографии
Видеоролик
Адрес: г. Чебоксары, Центр города,
| Описание дома | |
| Тип | Кирпичный |
|---|---|
| Год постройки | 1988 |
| Этаж | 4/5 |
| Сервис | Домофон, Парковка/Стоянка |
| Коммуникации | Газ, Вода, Электричество, Канализация, Телефон, Телевидение, Интернет |
| Примечание | Агентство на Ярославской заключило договор с собственником на реализацию квартиры по адресу г. Чебоксары, ул. Дзержинского, 20 («Дом архитектора»). Качественной постройки дом. Остановки общественного транспорта «Дом мод», «ул. Дзержинского». |
| Описание квартиры | |
| Тип квартиры | Квартира, Вторичный фонд |
| Расположение | Двухсторонная |
| Планировка | Улучшенная |
| Комнаты | Раздельные |
| Количество комнат | 3 |
| Санузел | Совмещенный |
| Количество санузлов | 1, Общий санузел |
| Балкон | Лоджия, Застеклен |
| Количество лоджий | 1 |
| Тип отопления | Центральное |
| Состояние | Хорошее |
| Обстановка | Обставлена необходимым |
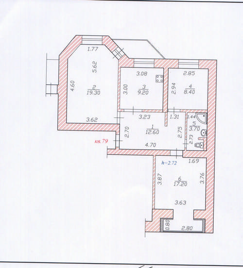
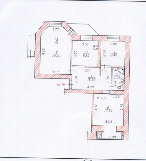
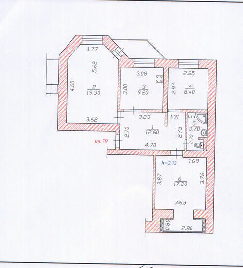
| Примечание | общая = 73 м2 кв.м: кухня 9 м2, комнаты 19, 8 и 17 м2. 4/5 этаж. Санузел совмещенный. Застекленный балкон из зала. Вид из окон на разные стороны. Отопление центральное. Улучшенная входная дверь. Отделка: качественные материалы: навесной потолок, стеклопакеты, паркетная доска, ламинат, мкомн. дубовые двери, встроенная прихожая, кондиционер, спальная, сантехника и кухня остаются! Установлены счетчики. Есть телефон, Интернет. Есть дополнительная возможность увеличения жилой площади + 76м2 за счет использования мансардного помещения над квартирой. Мансарда с частичной отделкой и электричеством. Экономически выгодно 11 тыс. руб/м2. Дополнительные преимущества квартиры: находится в историческом центре города. Шаговая доступность в любой район города. |
| Площадь, м 2 | 73/45/10 |
| Стоимость и условия сделки | |
| Стоимость | 3 900 000 руб. |
| Условия сделки | Квартира готова к проживанию и к продаже полностью. Стоимость от собственника 3 900 000 руб. Торг, ипотека - возможны. При оплате сразу возможна скидка. |
| Контактная информация | |
| Компания | Агентство на Ярославской |
| Контактное лицо | Григорьева Екатерина Петровна |
| Телефон | +7 (8352) 62-06-05; 89877609581 |
| A89877609581@gmail.com | |
Не нашли подходящего предложения?
Отправьте нам заявку при помощи формы "Запрос на поиск".
Поскольку внутренняя база предложений пополняется ежедневно, мы без труда сможем найти интересующий вас нужный вариант недвижимости.
Ознакомьтесь с перечнем услуг, оказываемых нашим агентством.


Оставить
Каталог

















© 2008-2026. "
Курьезы из жизни