Продажа > Квартиры и комнаты > 1-комн кв-ра в Центре города. Отделка и мебель. Инд отопление. Продажа по цене от собственника
Фотографии
Адрес: г. Чебоксары, Благовещенский,
| Описание дома | |
| Тип | Кирпичный |
|---|---|
| Год постройки | 2012 |
| Этаж | 1/10 |
| Сервис | Лифт грузовой |
| Коммуникации | Газ, Вода, Электричество, Канализация, Телевидение, Интернет |
| Примечание | Агентство на Ярославской заключило договор с собственником на реализацию квартиры по адресу: г. Чебоксары, ул. Рождественского, 9 дом кирпич 2012г., застройщик Стройтрест -3. мкр. Благовещенский. Остановки общ транспорта «мкр. Благовещенский» . Рядом школы №6, Дет сад №137, стоянка авто, развитая инфраструктура, магазины, бассейн, тренажерный зал. |
| Описание квартиры | |
| Тип квартиры | Квартира, Вторичный фонд |
| Расположение | Односторонная |
| Планировка | Новая |
| Комнаты | Смежные-раздельные |
| Количество комнат | 1 |
| Санузел | Совмещенный |
| Количество санузлов | 1, Ванная |
| Балкон | Лоджия, Застеклен |
| Количество лоджий | 1 |
| Тип отопления | Индивидуальное газовое |
| Состояние | Хорошее |
| Обстановка | Полностью обставлена |
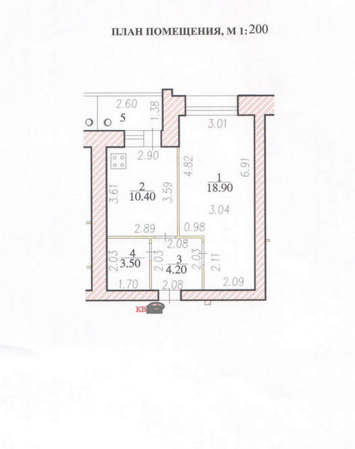
| Примечание | Общий метраж 40,5 кв.м., кухня 10,4 м2, комната 18,9м2, санузел совмещен 3,5 м2. Есть застекленный балкон 3,5 м2. Этаж высокий 1/10 этаж. Отопление — индивидуальное. Улучшенная входная дверь. Отделка: импортные материалы: навесной потолок, пол линолеум, в ванной плитка! Есть кабельное ТВ, Интернет. Домофон. Дополнительные преимущества квартиры: центр города! |
| Площадь, м 2 | 40/19/10 |
| Стоимость и условия сделки | |
| Стоимость | 2 280 000 руб. |
| Условия сделки | Квартира готова к проживанию и к продаже полностью. Стоимость от собственника 2 280 000 руб. Один взрослый собственник. В базе есть и другие объекты. При желании Вы можете заключить договор поиска нужной Вам квартиры или дома. Услуга платная. Покупаете по цене собственника. Экономите время. Ваши интересы в поиске и оформлении сделки защищает специалист. |
| Контактная информация | |
| Компания | Агентство на Ярославской |
| Контактное лицо | Катерина Григорьева |
| Телефон | +79877609581 |
| A89877609581@gmail.com | |
| Другая контактная информация | Адрес агентства: город Чебоксары, Центр, ул. Ярославская дом 34 офис 4 (рядом с Чувашским Национальным Конгрессом, вход — с проезжей части). Время работы с 9:00 до 18:00 по будням. |
Не нашли подходящего предложения?
Отправьте нам заявку при помощи формы "Запрос на поиск".
Поскольку внутренняя база предложений пополняется ежедневно, мы без труда сможем найти интересующий вас нужный вариант недвижимости.
Ознакомьтесь с перечнем услуг, оказываемых нашим агентством.


Оставить
Каталог











© 2008-2026. "
Курьезы из жизни