Продажа > Коммерческая недвижимость > Отдельно стоящее здание 923 м2, НЮР, 1 линия. Продажа.
Фотографии
Адрес: г. Чебоксары, Новоюжный,
| Описание строения | |
| Название объекта | Отдельно стоящее здание 923 м2, НЮР, 1 линия. Продажа |
|---|---|
| Тип | Кирпичный |
| Этажность | 1/2 |
| Сервис | Парковка/Стоянка |
| Коммуникации | Вода, Электричество, Канализация, Телефон, Телевидение, Интернет |
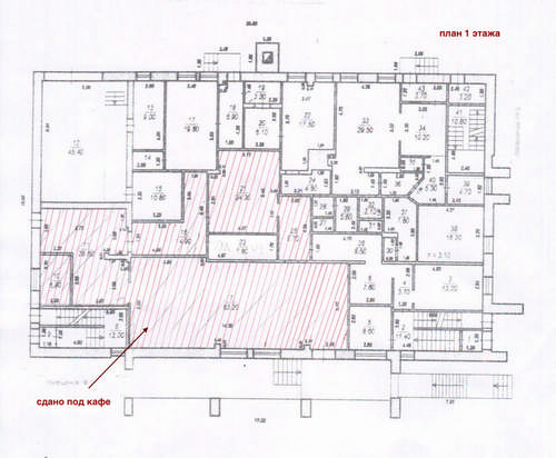
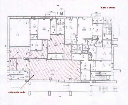
| Примечание | Здание, бывший произв-пищевой цех, офисы.... Идеально под: ТЦ, супермаркет, образоват. Или мед учреждение и тд.... Причина реализации — не профильная деятельность компании-собственника. 1 линия проезжей части — угол ул. Хузангая и Кукшумская. Густонаселенный район. Рядом школа. Перспектива развития/застройки. Парковка-у входа большая. Входная группа +3 пожарных выхода +Погрузка-разгрузка имеется. Агентство на Ярославской заключило договор с собственником на реализацию отдельно стоящего нежилого здания: 1+2 эт, всего 923 м2, h=3,25 м. Возможность сноса перегородок имеется. Имеется утвержденный архитектурный проект на надстройку доп этажа. |
| Описание помещения | |
| Назначение помещения | Торговое место, Офис, Салон, Магазин, Кафе/бар, База отдыха, Базa, Склад холодный, Склад теплый, Образовательное учреждение, Финансовое учреждение, Автобизнес |
| Тип отопления | Центральное |
| Состояние | Хорошее |
| Примечание | Здание-красн кирпич. Прилегающая территория - асфальт. Возможность обустройства мансардного этажа. Вентиляция. Отопление-центр. Вода, водоотвод, эл-во 75 кВт (возможно больше). Крыша отремонтирована. Окна пластиковые новые, батареи. Фасад здания – в прекрасном состоянии. |
| Площадь, м 2 | 923 |
| Стоимость и условия сделки | |
| Стоимость | 35 000 000 руб. |
| Условия сделки | Есть возможность реализации поэтажно/сдачи в аренду полностью/частично. Первоначальная стоимость от собственника: - аренда 270 руб/м2; возможность аренды 1, 2 этажей или полностью; - продажа 38 руб/м2, или 35 млн. руб все помещение. Возможна частичная рассрочка платежа. Поддержим первые месяцы ведения бизнеса. Окончательные условия – в переговорном процессе. Фото и информация в объявлении — реальные! |
Кредитование | ![]() Условия кредитования в «НБД-Банк» |
| Контактная информация | |
| Компания | Агентство на Ярославской |
| Контактное лицо | Катерина Григорьева |
| Телефон | +7 (987) 760-95-81 |
| A89877609581@gmail.com | |
| Другая контактная информация | В базе есть и другие объекты. При желании Вы можете заключить договор поиска нужного Вам объекта. Услуга платная. Покупаете/Арендуете по цене собственника. Экономите время. Ваши интересы в поиске и оформлении сделки защищает специалист. Сайт Агентства на Ярославской www.housegroup21.ru |
Не нашли подходящего предложения?
Отправьте нам заявку при помощи формы "Запрос на поиск".
Поскольку внутренняя база предложений пополняется ежедневно, мы без труда сможем найти интересующий вас нужный вариант недвижимости.
Ознакомьтесь с перечнем услуг, оказываемых нашим агентством.


Оставить
Каталог






























© 2008-2026. "
Курьезы из жизни