Продажа > Квартиры и комнаты > 2-х комн кв-ра в центре. Отделка, техника, мебель. Продажа
Фотографии
Адрес: г. Чебоксары, Центр города,
| Описание дома | |
| Тип | Кирпичный |
|---|---|
| Год постройки | 1962 |
| Этаж | 3/4 |
| Сервис | Домофон, Парковка/Стоянка |
| Коммуникации | Газ, Вода, Электричество, Канализация, Телевидение, Интернет |
| Примечание | Агентство заключило договор с собственником на реализацию квартиры по адресу: г. Чебоксары, ул. Декабристов, 37. Дом кирпич 1962г. Остановки общественного транспорта «Чебок трикотаж» и «П. Лумумбы». Рядом школы №23,30. Детский садик №74, магазины, ТЦ МегаМолл, развитая инфраструктура. |
| Описание квартиры | |
| Тип квартиры | Квартира, Вторичный фонд |
| Расположение | Односторонная |
| Планировка | Хрущевка |
| Комнаты | Смежные |
| Количество комнат | 2 |
| Санузел | Раздельный |
| Количество санузлов | 1 |
| Балкон | Нет балкона, Застеклен |
| Тип отопления | Центральное |
| Состояние | Хорошее |
| Обстановка | Полностью обставлена |
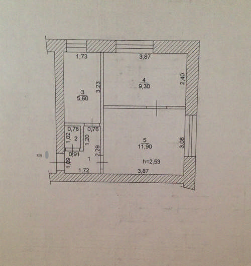
| Примечание | Общий метраж 31,50 кв.м., кухня 5,6 м2, комнаты 10 и 12м2. 3/4 этаж. Вид из окон: во двор. Отопление — центральное. Улучшенная входная железная дверь. Отделка: навесной потолок, пластиковые окна везде, пол линолеум, Есть домофон, Интернет. Техника, мебель остается полностью. Дополнительные преимущества квартиры: кладовка с погребом. |
| Площадь, м 2 | 31/22/5 |
| Стоимость и условия сделки | |
| Стоимость | 1 400 000 руб. |
| Условия сделки | Квартира готова к проживанию и к продаже полностью. Стоимость от собственника 1400000 рублей. Ипотека — возможна. При оплате сразу возможна скидка. |
| Контактная информация | |
| Компания | Агентство на Ярославской |
| Контактное лицо | Катерина Григорьева |
| Телефон | +7 (987) 760-95-81 |
| A89877609581@gmail.com | |
Не нашли подходящего предложения?
Отправьте нам заявку при помощи формы "Запрос на поиск".
Поскольку внутренняя база предложений пополняется ежедневно, мы без труда сможем найти интересующий вас нужный вариант недвижимости.
Ознакомьтесь с перечнем услуг, оказываемых нашим агентством.


Оставить
Каталог

























© 2008-2026. "
Курьезы из жизни