Аренда > Коммерческая недвижимость > Помещение свободного назначения. 1 этаж. 234 м2. Центр. ХБК. Аренда на длит срок..
Фотографии
Адрес: г. Чебоксары, ХБК,
| Описание строения | |||
| Название объекта | Помещение свободного назначения. 1 этаж. 234 м2. Центр. ХБК. Аренда на длит срок.. | ||
|---|---|---|---|
| Тип | Кирпичный | ||
| Год постройки | 1959 | ||
| Этажность | 1/4 | ||
| Сервис | Сигнализация/Охрана, Парковка/Стоянка | ||
| Коммуникации | Газ, Вода, Электричество, Канализация, Телевидение, Интернет | ||
| Примечание | Агентство на Ярославской заключило договор с собственником на сдачу в аренду нежилого помещения : Чебоксары, ул. Текстильщиков, 13 а. Кирп 5-ти этаж дом. Спальный район. Выгодное расположение: отличная видимость с проезжей части, поток людей круглогодично, густонаселенный мкр. Отдельный вход. Этаж первый в жилом доме. 4 витринных окна. Рекламная вывеска при входе. Парковка. | ||
| Описание помещения | |||
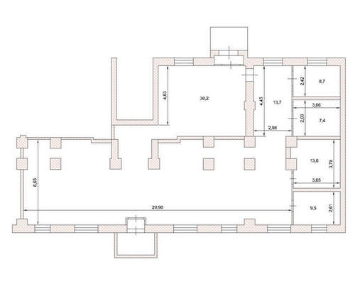
| Назначение помещения | Торговое место, Павильон, Офис, Салон, Магазин, Кафе/бар, Склад теплый, Образовательное учреждение, Финансовое учреждение, Автобизнес | ||
| Тип отопления | Центральное | ||
| Состояние | Хорошее | ||
| Оборудование | Частично оборудовано | ||
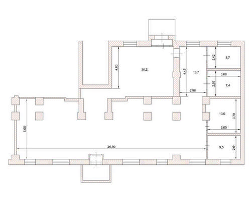
| Примечание | Отделка: пол-плитка; освещение; Оборудовано: ОП сигнализация, вода, водоотвод, эл-во 3х фазное 45кВт. Установлены счетчики расхода. Вытяжная система. Видеонаблюдение внутри и снаружи помещения. Интернет. Выделенная телефонная линия. Высота потолков 4,5 м. Ухоженная входная группа. Возможность круглосуточного использования. Индивидуальный клиентский и пожарный вход. Есть возможность деления площади на 58 м2 и 176 м2. | ||
| Площадь, м 2 | 234 | ||
| Стоимость и условия сделки | |||
| Стоимость аренды |
| ||
| Коммунальные платежи | Не включены, c НДС | ||
| Предоплата | МЕСЯЦ | ||
| Условия сделки | Первоначальная стоимость от собственника 850 руб/м2. Собственник ИП, без НДС. Ком усл оплачиваются отдельно. Поддержим первые месяцы ведения бизнеса. Окончательные условия – в переговорном процессе. Возможны торг при предоплате квартал/год. Фото и информация в объявлении — реальные! | ||
| Контактная информация | |||
| Компания | Агентство на Ярославской | ||
| Контактное лицо | Катерина Григорьева | ||
| Телефон | +7 (987) 760-95-81 | ||
| A89877609581@gmail.com | |||
Не нашли подходящего предложения?
Отправьте нам заявку при помощи формы "Запрос на поиск".
Поскольку внутренняя база предложений пополняется ежедневно, мы без труда сможем найти интересующий вас нужный вариант недвижимости.
Ознакомьтесь с перечнем услуг, оказываемых нашим агентством.


Оставить
Каталог































© 2008-2026. "
Курьезы из жизни