Аренда > Коммерческая недвижимость > Помещение для бизнеса, производства. Отличный рекламный фасад, 1 линия, отд. вход, отделка. Центр города.
Фотографии
Адрес: г. Чебоксары, Центр города,
| Описание строения | |||
| Название объекта | Помещение для бизнеса, производства. Отличный рекламный фасад, 1 линия, отд. вход, отделка. Центр города. | ||
|---|---|---|---|
| Тип | Кирпичный | ||
| Год постройки | 1959 | ||
| Этажность | -1/4 | ||
| Сервис | Домофон, Сигнализация/Охрана, Парковка/Стоянка | ||
| Коммуникации | Газ, Вода, Электричество, Канализация, Телевидение, Интернет | ||
| Примечание | Агентство на Ярославской заключило договор с собственником данного помещения в аренду: Центр г. Чебоксары, ул. Энгельса, 15. Отдельный вход. Круглосуточный доступ. Первая линия проезжей части, огромный трафик авто и пешеходов. Свободная парковка у входа. Цоколь жилого дома. Индивидуальный (отдельный) вход. Погрузка разгрузка со двора. Соседние помещения: магазин «Автозапчасти», ремонт обуви, магазин дверей, бизнес центр на Энгельса, магазины и т. д. | ||
| Описание помещения | |||
| Назначение помещения | Торговое место, Офис, Салон, Магазин, Образовательное учреждение, Финансовое учреждение | ||
| Тип отопления | Центральное | ||
| Состояние | Новая, после отделки | ||
| Оборудование | Не оборудовано | ||
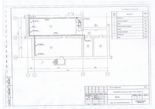
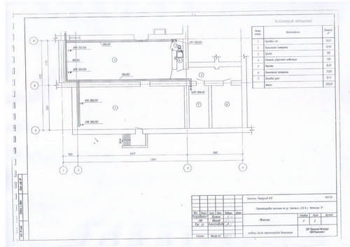
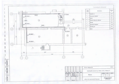
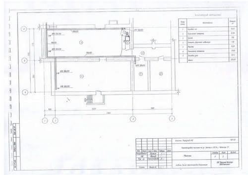
| Примечание | Отделано полностью: стены выровнены, пол-плитка, потолок Армстронг, декоративное светодиодное освещение, двери, рольставни. 1 окно-стеклопакет. Охранно-пожарная сигнализация. Тревожная кнопка. Все коммуникации. Интернет. S=210 кв.м: 2 торговых зала, санузел, комната уборочного инвентаря, техн помещение, теплоузел. Доп. выход(пожарный) или погрузка-разгрузка. Высота потолка 2,4 м. | ||
| Площадь, м 2 | 210 | ||
| Стоимость и условия сделки | |||
| Стоимость аренды |
| ||
| Коммунальные платежи | Не включены, без НДС | ||
| Залоговая (страховая) сумма | 73500 | ||
| Предоплата | МЕСЯЦ | ||
| Комиссия | 10000 | ||
| Условия сделки | Стоимость аренды помещения от собственника: 350 руб/м2 руб. Ком усл оплачиваются отдельно. Обеспечительный платеж равный месячной арендной плате обязателен. В базе есть и другие объекты. При желании Вы можете заключить договор поиска нужного Вам объекта. Услуга платная. Покупаете/Арендуете по цене собственника. Экономите время. Ваши интересы в поиске и оформлении сделки защищает специалист. | ||
| Контактная информация | |||
| Компания | Агентство на Ярославской | ||
| Контактное лицо | Катерина Григорьева | ||
| Телефон | +7 (987) 760-95-81 | ||
| A89877609581@gmail.com | |||
Не нашли подходящего предложения?
Отправьте нам заявку при помощи формы "Запрос на поиск".
Поскольку внутренняя база предложений пополняется ежедневно, мы без труда сможем найти интересующий вас нужный вариант недвижимости.
Ознакомьтесь с перечнем услуг, оказываемых нашим агентством.


Оставить
Каталог





























© 2008-2026. "
Курьезы из жизни