Продажа > Квартиры и комнаты > Комфортная 2-х комн квартира. Изумительный вид на город. Инд отопление. Центр. Мебель.Техника.
Фотографии
Адрес: г. Чебоксары, Центр города,
| Описание дома | |
| Тип | Кирпичный |
|---|---|
| Год постройки | 2010 |
| Этаж | 8/17 |
| Сервис | Лифт пассажирский, Домофон, Парковка/Стоянка, Лифт грузовой |
| Коммуникации | Газ, Вода, Электричество, Канализация, Телевидение, Интернет |
| Примечание | Современный мкр. Благовещенский. Новый кирпич дом 2010 года, застройщик «Старко». Рядом школа №06, новый детский сад, фитнес клуб, стоянка авто, развитая инфраструктура. Хорошая связь в любое направление города. Прод. Магазины, детские клубы, школа иностранных языков. Все для комфортной жизни! Агентство на Ярославской заключило договор с собственником на реализацию квартиры по адресу: Чебоксары, ул. Базарная, 10. 8/17 этаж. 2 лифта грузопассажирский и пассажирский. |
| Описание квартиры | |
| Тип квартиры | Квартира, Вторичный фонд |
| Расположение | Односторонная |
| Планировка | Новая |
| Комнаты | Смежные-раздельные |
| Количество комнат | 2 |
| Санузел | Раздельный |
| Количество санузлов | 1, Ванная |
| Балкон | Балкон, Застеклен |
| Тип отопления | Индивидуальное газовое |
| Состояние | Новая, после отделки |
| Обстановка | Обставлена необходимым |
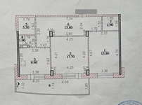
| Примечание | S общая=81,3 м2. Кухня:10 м2, комнаты 16 и 18 м2.; Лоджия витражная 13,6 м2 из кухни и зала застекленная, на полу плитка и вместительный шкаф на заказ. Санузел раздельный. Гардеробная 3 м2. Высота потолка 2.77м. Новый газовый котел Bosch. Кондиционер Hair новый в комнате. Чудесная, видовая, светлая, обставленная квартира. Остается частичная мебель и техника. Премиальная входная дверь Torex. Европейская сантехника. Отделка: импортные материалы: ламинат в комнатах, мкомн двери, потолок натяжной. Окна новые пластик Rehau. Есть домофон, интернет. |
| Площадь, м 2 | 81/34/10 |
| Стоимость и условия сделки | |
| Стоимость | 7 900 000 руб. |
| Условия сделки | Один взрослый собственник, в собственности более 5 лет. Прописанных лиц нет. |
| Контактная информация | |
| Компания | Агентство на Ярославской |
| Контактное лицо | Катерина Григорьева |
| Телефон | +7 (987) 760-95-81 |
| A89877609581@gmail.com | |
Не нашли подходящего предложения?
Отправьте нам заявку при помощи формы "Запрос на поиск".
Поскольку внутренняя база предложений пополняется ежедневно, мы без труда сможем найти интересующий вас нужный вариант недвижимости.
Ознакомьтесь с перечнем услуг, оказываемых нашим агентством.


Оставить
Каталог



































© 2008-2025. "
Курьезы из жизни