Продажа > Коммерческая недвижимость > Помещение свободного назначения. 1 этаж. 234 м2. Центр. ХБК. Сдано в аренду.
Фотографии
Адрес: г. Чебоксары, ХБК,
| Описание строения | |
| Название объекта | Помещение свободного назначения. 1 этаж. 234 м2. Центр. ХБК. Сдано в аренду. |
|---|---|
| Тип | Кирпичный |
| Год постройки | 1959 |
| Этажность | 1/5 |
| Сервис | Сигнализация/Охрана, Парковка/Стоянка |
| Коммуникации | Газ, Вода, Электричество, Канализация, Телевидение, Интернет |
| Примечание | Агентство на Ярославской заключило договор с собственником на реализацию нежилого помещения : Чебоксары, ул. Текстильщиков, 13 а. Кирп 5-ти этаж дом. Спальный район. Выгодное расположение: отличная видимость с проезжей части, поток людей круглогодично, густонаселенный мкр. Отдельный вход. Этаж первый в жилом доме. 4 витринных окна. Рекламная вывеска при входе. Парковка. |
| Описание помещения | |
| Назначение помещения | Торговое место, Павильон, Офис, Салон, Магазин, Образовательное учреждение |
| Тип отопления | Центральное |
| Состояние | Хорошее |
| Оборудование | Частично оборудовано |
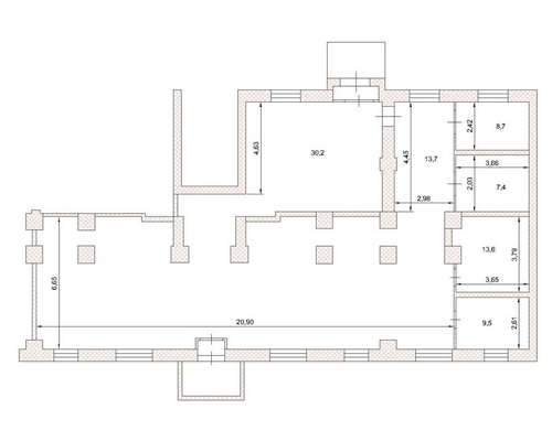
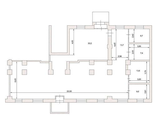
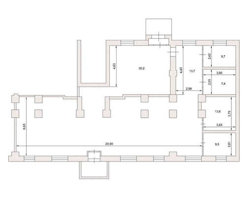
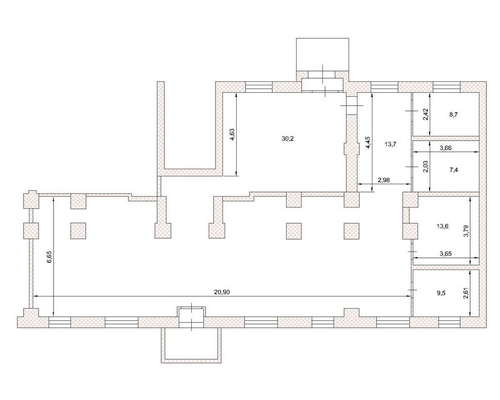
| Примечание | Отделка: пол-плитка; освещение; Оборудовано: ОП сигнализация, вода, водоотвод, эл-во 3х фазное 45кВт. Установлены счетчики расхода. Вытяжная система. Видеонаблюдение внутри и снаружи помещения. Интернет. Выделенная телефонная линия. Высота потолков 4,5 м. Ухоженная входная группа. Возможность круглосуточного использования. Индивидуальный клиентский и пожарный входы. Есть возможность деления площади на 58 м2 и 176 м2. |
| Площадь, м 2 | 234 |
| Стоимость и условия сделки | |
| Стоимость | 17 500 000 руб. |
| Условия сделки | Стоимость от собственника за все помещение. Собственник физ лицо, без НДС. Фото и информация в объявлении — реальные! |
Кредитование | ![]() Условия кредитования в «НБД-Банк» |
| Контактная информация | |
| Компания | Агентство на Ярославской |
| Контактное лицо | Катерина Григорьева |
| Телефон | +7 (987) 760-95-81 |
| A89877609581@gmail.com | |
Не нашли подходящего предложения?
Отправьте нам заявку при помощи формы "Запрос на поиск".
Поскольку внутренняя база предложений пополняется ежедневно, мы без труда сможем найти интересующий вас нужный вариант недвижимости.
Ознакомьтесь с перечнем услуг, оказываемых нашим агентством.


Оставить
Каталог


























© 2008-2026. "
Курьезы из жизни