Продажа > Квартиры и комнаты > 2 комн видовая квартира. Центр города. Шикарный вид на лакреевский лес и город. Никто не жил.
Фотографии
Видеоролик
Адрес: г. Чебоксары, Центр города,
| Описание дома | |
| Тип | Монолитно-кирпичный |
|---|---|
| Год постройки | 2019 |
| Этаж | 15/18 |
| Сервис | Парковка/Стоянка, Лифт грузовой |
| Коммуникации | Газ, Вода, Электричество, Канализация, Телевидение, Интернет |
| Примечание | Агентство на Ярославской заключило договор с собственником на реализацию квартиры по адресу: г. Чебоксары, ул. Петрова, 9/1. Новый монолитно-кирпич дом 2019 года, застройщик МУП «ГУКС». Рядом школы №46, 49, дет сад №10. Центральный рынок, стоянка авто, развитая инфраструктура. Два лифта. |
| Описание квартиры | |
| Тип квартиры | Квартира, Вторичный фонд |
| Расположение | Односторонная |
| Планировка | Улучшенная |
| Комнаты | Смежные-раздельные |
| Количество комнат | 2 |
| Санузел | Совмещенный |
| Количество санузлов | 1, Душ |
| Балкон | Лоджия, Застеклен |
| Тип отопления | Центральное |
| Состояние | Новая, после отделки |
| Обстановка | Частично обставлена |
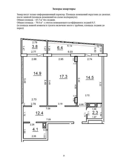
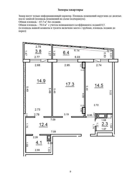
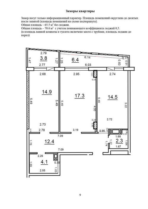
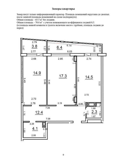
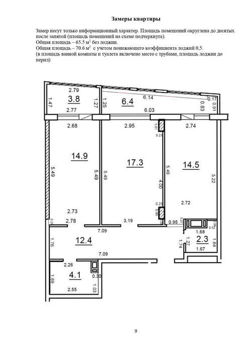
| Примечание | S общая=75.7 м2. Кухня: 14,5 м2, комнаты 17,3 и 14,9 м2.; Лоджия витражная 3,8 м2 и 6,4 м2 из кухни и комнат застекленная. Гардеробная/бытовая комната. Санузел 4 м2 совмещенный. Этаж 15/18. Высота потолка 2,75 м Чудесная, светлая, новая квартира. Отделка: импортные материалы: ламинат Таркет в комнатах, плитка керамогранит, м/комн двери Юкка. Окна пластик. Есть домофон, интернет по всех комнатах. Заменена вся электрика, выведен кабель под видео. Дорогая сантехника с термостатом. Бойлер. Теплый регулируемый пол в ванной комнате. Лоджии утеплены со всех сторон. Отопление регулируемое по приборам учета. Улучшенная входная дверь. Дополнительные преимущества квартиры: Есть рядом ( ул. Лесная) гараж 36,2 м2 за доп плату. |
| Площадь, м 2 | 75/32/14 |
| Стоимость и условия сделки | |
| Стоимость | 10 500 000 руб. |
| Условия сделки | Квартира готова к проживанию и к продаже полностью. Стоимость от собственника. Один взрослый собственник. В собственности более 5 лет. |
| Контактная информация | |
| Компания | Агентство на Ярославской |
| Контактное лицо | Катерина Григорьева |
| Телефон | +7 (987) 760-95-81 |
| A89877609581@gmail.com | |
Не нашли подходящего предложения?
Отправьте нам заявку при помощи формы "Запрос на поиск".
Поскольку внутренняя база предложений пополняется ежедневно, мы без труда сможем найти интересующий вас нужный вариант недвижимости.
Ознакомьтесь с перечнем услуг, оказываемых нашим агентством.


Оставить
Каталог



































© 2008-2026. "
Курьезы из жизни