Продажа > Квартиры и комнаты > Просторная квартира. Евродвушка 50,5 м2. СЗР. Мебель.
Фотографии
Адрес: г. Чебоксары, Северозападный,
| Описание дома | |
| Тип | Монолитно-кирпичный |
|---|---|
| Год постройки | 2005 |
| Этаж | 9/10 |
| Сервис | Лифт пассажирский, Домофон, Парковка/Стоянка |
| Коммуникации | Газ, Вода, Электричество, Канализация, Телефон, Телевидение, Интернет |
| Примечание | Агентство на Ярославской заключило договор с собственником на реализацию квартиры по адресу г. Чебоксары, ул. Мичмана Павлова, 43, монолит-кирп. дом 2005 года, застройщик ТУС. Остановки общ. Транспорта. Рядом школы №62, Дет сад №112, 112 к 2, 10, леспарк, стоянка авто, развитая инфраструктура. Прогулочная зона. Бассейн Чгу, Сквер,ТРЦ Питер, библиотека. Волга. Лифт пассажирский. |
| Описание квартиры | |
| Тип квартиры | Квартира, Вторичный фонд |
| Расположение | Односторонная |
| Планировка | Индивидуальная |
| Комнаты | Смежные-раздельные |
| Количество комнат | 1 |
| Санузел | Совмещенный |
| Количество санузлов | 1, Ванная |
| Балкон | Лоджия, Застеклен |
| Количество лоджий | 1 |
| Тип отопления | Центральное |
| Состояние | Хорошее |
| Обстановка | Частично обставлена |
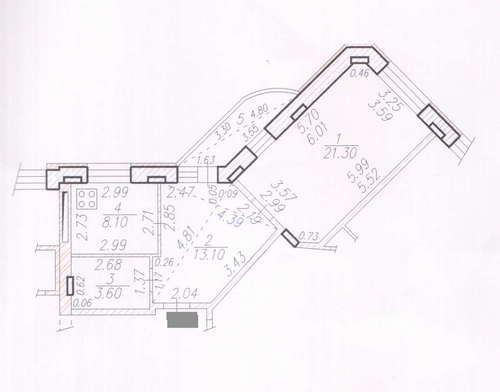
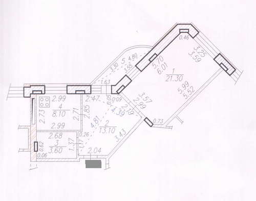
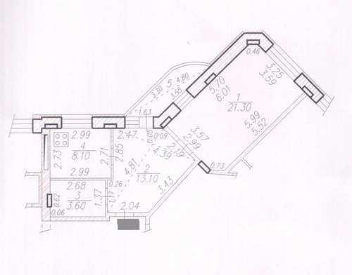
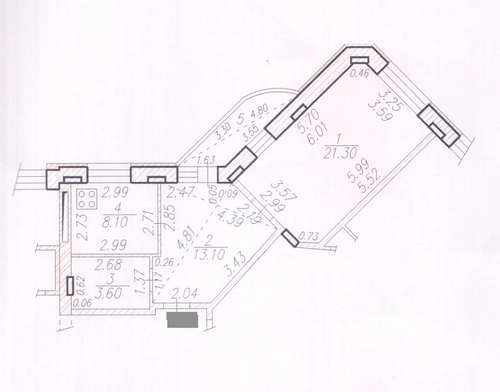
| Примечание | Общий метраж 50,5 кв.м., кухня 8 м2, комнаты 6 м2 и 15м2, либо общая 21 м2, гардеробная, есть застекленная лоджия 4,4 м2, H=2,79м. Санузел совмещенный 3,6м2. 9/10 этаж. Вид из окон: на город. Отопление — центральное. Улучшенная входная дверь. Отделка: пол ламинат, в ванной плитка, стеклопакеты на окнах, сантехника, натяжной потолок. Кухня, 2-х спальная кровать и шкаф-кровать трансформер остаются в подарок новому собственнику! Есть интернет, домофон. Дополнительные преимущества квартиры: чудесный вид на город! Хороший вариант для первого самостоятельного жилья. |
| Площадь, м 2 | 50/21/8 |
| Стоимость и условия сделки | |
| Стоимость | 5 520 000 руб. |
| Условия сделки | Один взрослый собственник. Прописанных лиц нет. Квартира готова к продаже полностью. |
| Контактная информация | |
| Компания | Агентство на Ярославской |
| Контактное лицо | Катерина Григорьева |
| Телефон | +7 (987) 760-95-81 |
| A89877609581@gmail.com | |
Не нашли подходящего предложения?
Отправьте нам заявку при помощи формы "Запрос на поиск".
Поскольку внутренняя база предложений пополняется ежедневно, мы без труда сможем найти интересующий вас нужный вариант недвижимости.
Ознакомьтесь с перечнем услуг, оказываемых нашим агентством.


Оставить
Каталог



































© 2008-2026. "
Курьезы из жизни