Продажа > Коммерческая недвижимость > 74,5 кв.м. огромный трафик, 1 этаж, 1 линия, парковка, Центр. Два отд входа. Супер место. Арендный доход/либо под свои нужды.
Фотографии
Адрес: г. Чебоксары, Центр города,
| Описание строения | |
| Название объекта | 74,5 кв.м. огромный трафик, 1 этаж, 1 линия, парковка, Центр. Два отд входа. Супер место. Арендный доход/либо под свои нужды. |
|---|---|
| Тип | Кирпичный |
| Год постройки | 1958 |
| Этажность | 1/5 |
| Сервис | Сигнализация/Охрана, Парковка/Стоянка |
| Коммуникации | Газ, Вода, Электричество, Канализация, Телевидение, Интернет |
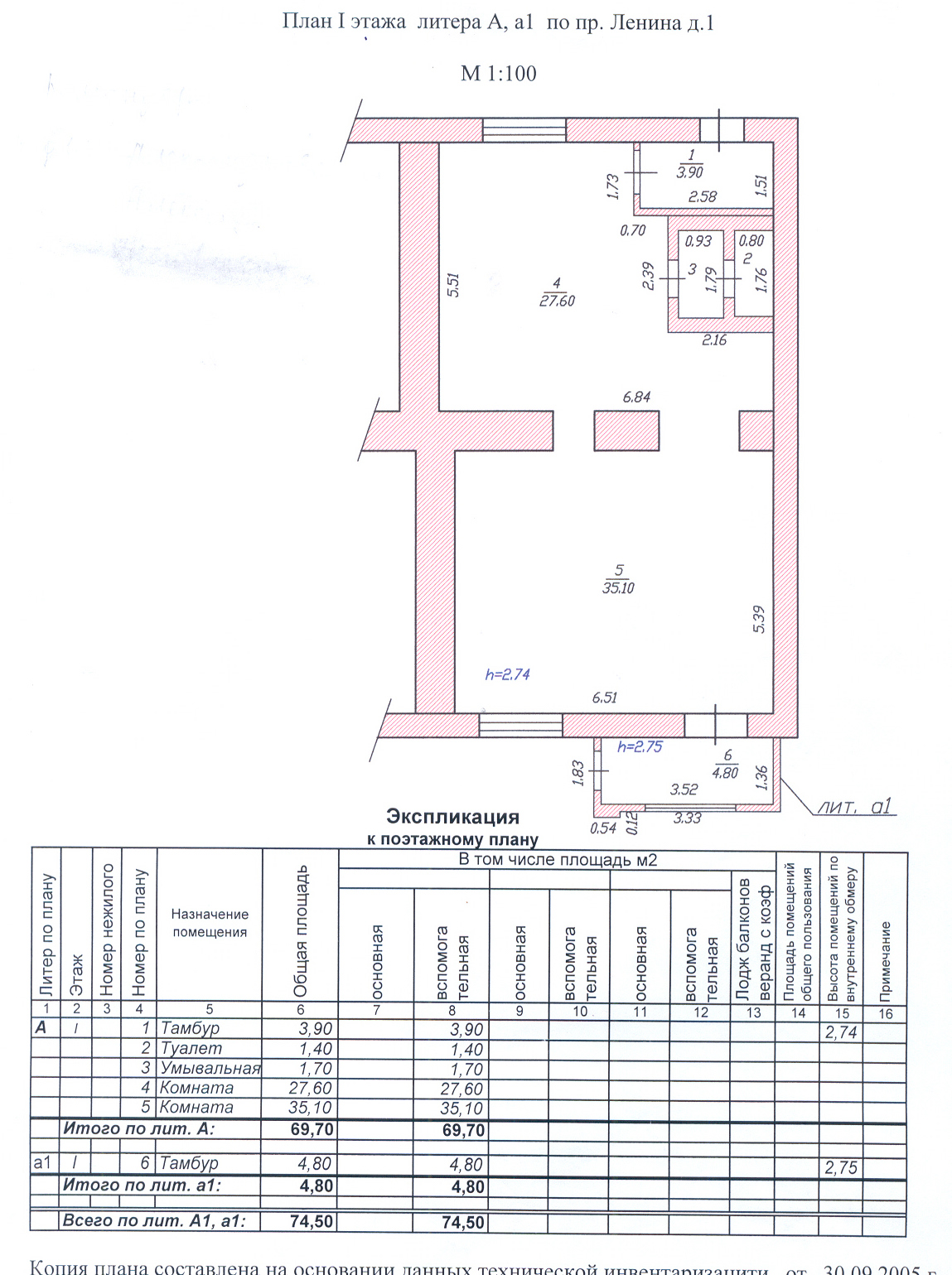
| Примечание | Агентство заключило договор с собственником на реализацию помещения по адресу: г. Чебоксары, пр. Ленина, д. 1. Кирпичный дом. Развитая инфраструктура, проходная зона, магазины, банки, парковка у входа 2 часа бесплатно. Круглосуточный доступ. |
| Описание помещения | |
| Назначение помещения | Торговое место, Офис, Салон, Магазин, Склад теплый , |
| Тип отопления | Центральное |
| Состояние | Хорошее |
| Примечание | Просторное помещение 35 и 28 м2, хол, тамбур и туалетная комната. Высота потолка 3,1 м. Электричество. Центр отопление. Разгрузка погрузка со двора (закрытый двор со шлагбаумом). Окна с рольставнями. Интернет. ОП сигнализация. Система видеонаблюдения по одной видеокамере на каждое крыльцо. Счетчики на воду, эл-во. Отделка — качественными материалами: пол-плитка, стены-ровные, навесной потолок. Утвержденное рекламное место-вывеска на фасаде. 1 этаж вровень с тротуаром, без ступеней. Имеется вытяжка до крыши дома. |
| Площадь, м 2 | 74 |
| Стоимость и условия сделки | |
| Стоимость | 16 500 000 руб. |
| Условия сделки | Предлагаемая стоимость за всё помещение, без НДС. Собственник—физ.лицо. |
Кредитование | ![]() Условия кредитования в «НБД-Банк» |
| Контактная информация | |
| Компания | Агентство на Ярославской |
| Контактное лицо | Катерина Григорьева |
| Телефон | +7 (987) 760-95-81 |
| A89877609581@gmail.com | |
Не нашли подходящего предложения?
Отправьте нам заявку при помощи формы "Запрос на поиск".
Поскольку внутренняя база предложений пополняется ежедневно, мы без труда сможем найти интересующий вас нужный вариант недвижимости.
Ознакомьтесь с перечнем услуг, оказываемых нашим агентством.


Оставить
Каталог


























© 2008-2026. "
Курьезы из жизни