Аренда > Коммерческая недвижимость > Нежилое помещение, 1 линия, 250 кв.м, отд. вход, парковка.
Фотографии
Адрес: г. Чебоксары, 
| Описание строения | |||
| Тип | Кирпичный | ||
|---|---|---|---|
| Этажность | 1 | ||
| Сервис | Парковка/Стоянка | ||
| Коммуникации | Вода, Электричество, Канализация | ||
| Примечание | Проходная зона. Автовокзал. Остановка общ транспорта в 50 м. | ||
| Описание помещения | |||
| Назначение помещения | Офис, Салон, Кафе/бар, Образовательное учреждение, Финансовое учреждение , | ||
| Тип отопления | Центральное | ||
| Состояние | Требует косметического ремонта | ||
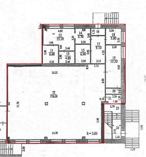
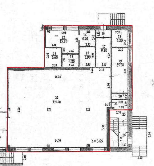
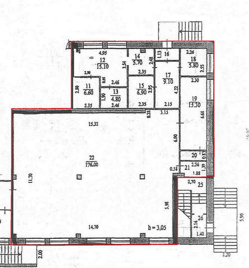
| Примечание | Общ площадь — 252 кв.м: зал — 176 кв.м, кабинеты, подсобные помещения, санузел. Отдельный вход. Помещение требует ремонта. | ||
| Площадь, м 2 | 252 | ||
| Стоимость и условия сделки | |||
| Стоимость аренды | 
 | ||
| Коммунальные платежи | Включены, без НДС | ||
| Условия сделки | Стоимость аренды от собственника — 600 руб./кв. м в месяц. Коммунальные услуги включены, электричество — по счетчику. Арендные каникулы возможны. Окончательная стоимость, условия — в переговорном процессе. Специалист Ксения Попова ответит на Ваши дополнительные вопросы и ознакомит Вас подробнее с помещением, документами и условиями аренды. Фото и информация в объявлении — реальные! Правила работы с нами: 1)до того как звонить нам, изучите внимательно данное обьявление, посмотрите планировку, фотографии, условия сделки и местоположение обьекта. 2) при разговоре с нами, пожалуйста: представьтесь полностью, укажите точно объект, который вас заинтересовал; 3) показы объекта, документов, точный адрес - только при серьезности намерений сделки и при предъявлении документов, удостоверяющих личность. С не идентифицированными гражданами на объекты не выезжаем. Просьба отнестись с пониманием относительно данных мер. Посредникам - просьба не беспокоить | ||
| Контактная информация | |||
| Компания | Агентство на Ярославской | ||
| Контактное лицо | Ксения Евгеньевна Попова | ||
| Телефон | +7 (8352) 62-37-31; +7 (8) 962-600-86-16 | ||
| house.group.cheboksary@gmail.com | |||
Не нашли подходящего предложения?
Отправьте нам заявку при помощи формы "Запрос на поиск".
Поскольку внутренняя база предложений пополняется ежедневно, мы без труда сможем найти интересующий вас нужный вариант недвижимости.
Ознакомьтесь с перечнем услуг, оказываемых нашим агентством.
 
	

 Оставить
Оставить Каталог
Каталог











 © 2008-2025. "
© 2008-2025. " Курьезы из жизни
Курьезы из жизни