Аренда > Коммерческая недвижимость > Производственно-складское помещение.
Фотографии
Адрес: г. Чебоксары,
| Описание строения | |||
| Этажность | 1,2 | ||
|---|---|---|---|
| Сервис | Парковка/Стоянка | ||
| Коммуникации | Газ, Вода, Электричество, Канализация, Телефон, Интернет | ||
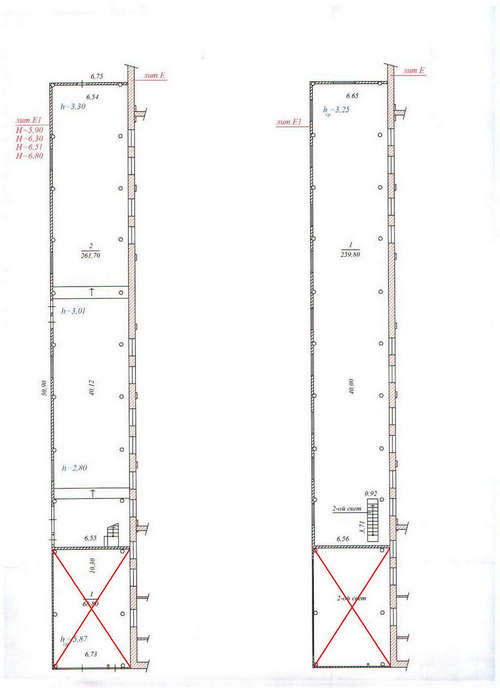
| Примечание | Агентство на Ярославской заключило договор с собственником на сдачу в аренду производственно-складских помещений. Данные помещения пристроены к нежилому отдельно стоящему зданию. Имеют погрузочно-разгрузочную возможность. Грузовые ворота с 2 сторон: 240 и 300 см. - высота ворот. Всего три входных двери. Состоят из двух этажей: 1-ый-производственно-складской и 2-ой — офисы. Подъезд фуры без прицепа-возможен круглосуточно. Парковка — у входа. Все коммуникации: вода, электричество, канализация и газ. Земельный участок — в собственности. Рядом расположена мелкооптовая база цветов, производство мебели и т.д. В непосредственной близости расположены только нежилые помещения, квартир нет. | ||
| Описание помещения | |||
| Назначение помещения | Базa, Склад теплый, Автобизнес , | ||
| Тип отопления | Индивидуальное газовое | ||
| Состояние | Новая, после отделки | ||
| Примечание | Площадь помещения всего 521 кв.м. Расположено на двух этажах. Высота потолка от 2,8 до 3,3 метра. Есть дополнительная загороженная территория. Возможно арендовать помещение целиком или половину. Интернет. Телефон. Электричество — 25 кВт. Вода. Канализация городская. Возможность установки ОП сигнализации. Есть возможность надстройки и аренды дополнительной площади или зем участка. Отделка помещения — нормальная: пол — бетон; кирпич и профнастил; окна — стеклопакет; Теплое, уютное. | ||
| Площадь, м 2 | 521 | ||
| Стоимость и условия сделки | |||
| Стоимость аренды |
| ||
| Коммунальные платежи | Не включены, без НДС | ||
| Залоговая (страховая) сумма | 20000 | ||
| Условия сделки | Арендодатель ИП. Первоначальная стоимость аренды помещения ОТ СОБСТВЕННИКА: от 160 до 170 руб/кв.м. без НДС, коммунальные услуги — отдельно по счетчикам. Залоговая (страховая) сумма — 20 тыс руб. Возможны торг при оплате за год вперед. Фото и информация в объявлении — реальные! Правила работы с нами: 1) до того как звонить нам, изучите внимательно данное объявление, посмотрите планировку, фотографии, условия сделки и местоположение объекта. 2) при разговоре с нами, пожалуйста : представьтесь полностью. укажите точно объект, который вас заинтересовал 3) показы объекта, документов, точный адрес- только при серьезности намерений сделки и при предъявлении документов, удостоверяющих личность. С не идентифицированными гражданами на объекты не выезжаем. Просьба отнестись с пониманием относительно данных мер. Посредникам-просьба не беспокоить. | ||
| Контактная информация | |||
| Компания | Агентство на Ярославской | ||
| Контактное лицо | Ксения Евгеньевна Попова | ||
| Телефон | +7 (8352) 62-06-05; +7 (8) 962-600-86-16 | ||
| house.group.cheboksary@gmail.com | |||
Не нашли подходящего предложения?
Отправьте нам заявку при помощи формы "Запрос на поиск".
Поскольку внутренняя база предложений пополняется ежедневно, мы без труда сможем найти интересующий вас нужный вариант недвижимости.
Ознакомьтесь с перечнем услуг, оказываемых нашим агентством.


Оставить
Каталог







© 2008-2026. "
Курьезы из жизни